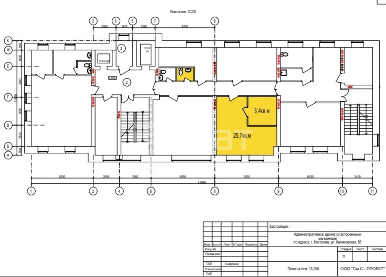
Офисное помещение, 25 м²

Сдается офисное помещение в центре г. Кострома. помещение расположено в бизнес-центре на 5 этаже, на ул. Калиновской, возле Калиноского рынка. В настоящее время помещение используется под бъюти услуги: массаж и маникюр (разделено на две зоны перегородкой) Интерьер помещения, а так же поставить перегородки под желание арендатора, можно по согласованию с арендадателем. Перепланировка и ремонт согласовываются отдельно. Санузел отдельный на два кабинета. Вода холодная и горячая. Отопление Автономное газовое. В стоимость арендной платы входят коммунальные платежи. На входе в здание расположена круглосуточная охрана, вход в здание в любое время суток , в вечернее время по договоренности с охраной. На первом этаже имеется столовая, Вы всегда будете с обедом. В здании два лифта, пассажирский и грузовой. Удачное расположение здания , вся инфраструктура , остановки общественного транспорта в любой конец города в шаговой доступности. Помещение освободится 1 ноября.











