4-комнатная квартира, 125.8 м²

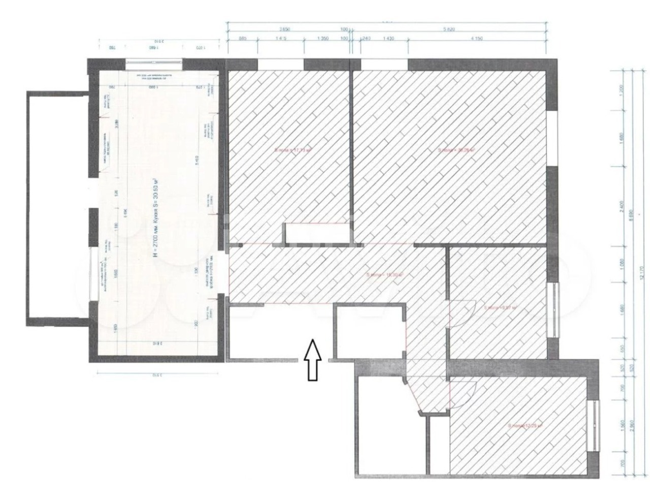
Продается 4-хкомнатная квартира общей площадью 125,8 кв.м. и нежилое помещение 63 кв.м.с ней. Цена указана за оба объекта. Квартира расположена на 4-ом этаже 4-хэтажного кирпичного дома комфорт-класса. Дом построен в центральном районе города, в шаговой доступности разнообразные магазины, аптеки, Сбербанк, детские сады, школы, секции и кружки для детей. Дом 10-тиквартирный, 2012 года постройки. Дом выполнен полностью из кирпича , без использования , каких либо, пено и т.д. блоков . Огороженная частная территория. На территории имеется отдельное парковочное место, зона для пикника. Квартира удобной планировки с 2-мя сан.узлами (5,5 и 3,1 кв.м.). Ремонт выполнен по дизайн-проекту (дизайн проект прилагается) качественными импортными материалами. Две комнаты (кабинет и детская) отремонтированы не по дизайн-проекту , зал (гостинная) можно разделить на две комнаты – есть хороший вариант для ремонта. Автономное газовое отопление, теплые полы (кухня, столовая, прихожая, лоджия, 2 сан.узла). Вся сантехника импортная. Просторная прихожая со встроенным шкафом-купе. Пол – керамическая плитка. Большая и светлая кухня, совмещенная со столовой (общей площадью 30,5 кв.м.). Кухонный гарнитур изготавливался индивидуально. Использовались итальянские фасады из натурального дерева. Все удобно, просчитано, закрыто. Встроенная бытовая техника: холодильник, посудомоечная машина, электрический духовой шкаф, газовая варочная поверхность. Пол – керамическая плитка. Лоджия застекленная, утепленная, с отоплением и теплым полом. Отделка - плитка. В квартире на полу постелена паркетная доска. В основных комнатах многоуровневые гипсокартоновые потолки со скрытыми карнизами. Нежилое помещение отремонтировано, 3 окна, сан.узел, электричество, отопление.




























