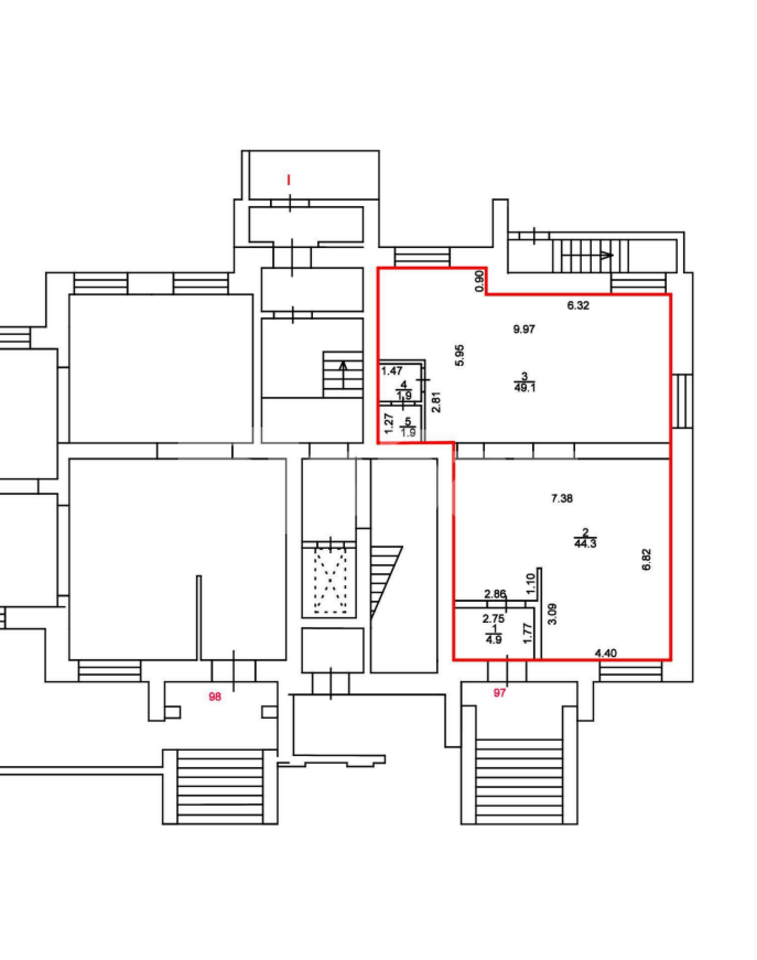
Cвободного назначения, 102 м²
г Кострома, ул Никитская, д 118аПоказать на карте
Назад
13 000 000 ₽127 451 ₽/м²

Смирнов Илья ВитальевичСпециалист по недвижимости
50 отзыва(ов)
Показать телефон
Записаться на просмотр
Укажите имя и телефон и нажмите «Отправить». С Вами свяжется персональный менеджер.Описание
Помещение с арендатором на долгосрочной аренде. Продается помещение свободного назначения общей площадью 102 м2, расположенное на 1 этаже нового девятиэтажного дома. Произведен ремонт во всех помещениях. Установлена система охраны, видео наблюдение, пожарная сигнализация. Помещение очень теплое, низкие коммунальные платежи. Соседствует с продуктовым магазином, что обеспечивает дополнительный трафик. В 50 метрах остановки общественного транспорта, хорошая транспортная доступность на автомобиле. Торг возможен. По всем интересующим вопросам звоните!
Характеристики Раскрыть
Газ true
Вид сделки Прямая продажа
Подъезд Отдельный с улицы
Водоснабжение true
Общая Площадь, кв.м. 102
Отделка помещения Офисная
Тип объекта Cвободного назначения
Этаж 1
Канализация true
Отопление Центральное
Тип парковки На улице
Этажность 9
Тип дома Жилой дом
Класс здания B
Электричество true
propertyRights Собственник
Тип сделки Продажа
Расположение на картег Кострома, ул Никитская, д 118а




















