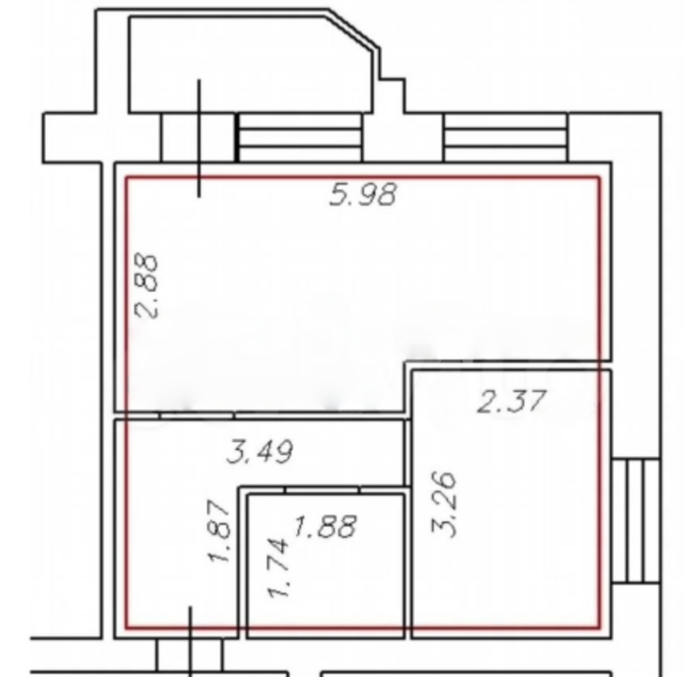
1-комнатная квартира, 36 м²

Продам однокомнатную квартиру в районе "Сортировка" - Продается почти со всей мебелью -Квартира с крышной котельной, что позволяет комфортно себя чувствовать в любое время года. - Район тихий и спокойный. Рядом магазин "пятерочка". -сантехника,аптеки, хозяйственный магазин и остановка общественного транспорта -Школа№63, Железнодорожный колледж, садики №3,32 и 52 -ПВЗ, СДЭК, Почта - Поликлиника №9, НИИ Материнства и детства. -Сбербанк - Могу отметить масштабно обновленный исторический парк 1905 года у реки Талка. Прекрасное место для проведения прогулок или пикника семьей. А в праздники провести время с друзьями или Вашими будущими соседями, которые добры и всегда отзывчивы. Мы предлагаем не просто квартиру, а уют, душевное семейное тепло и задел на будущее. Потому что, #МЫ_СОЗДАЕМ_БУДУЩЕЕ

















