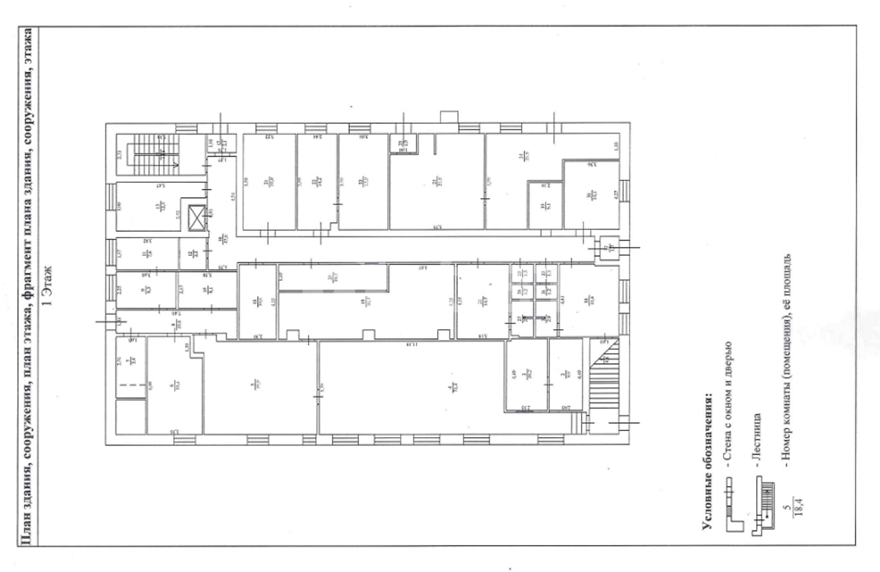
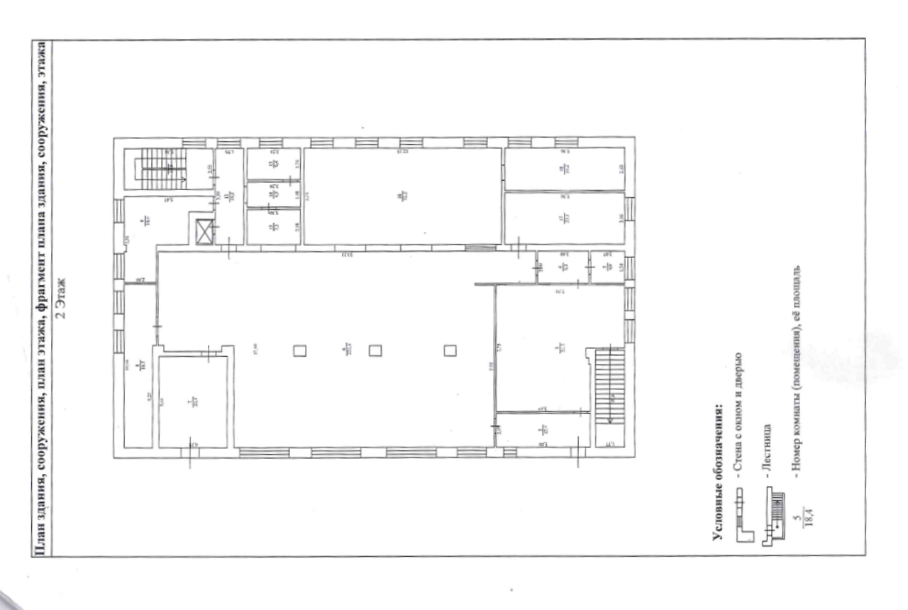
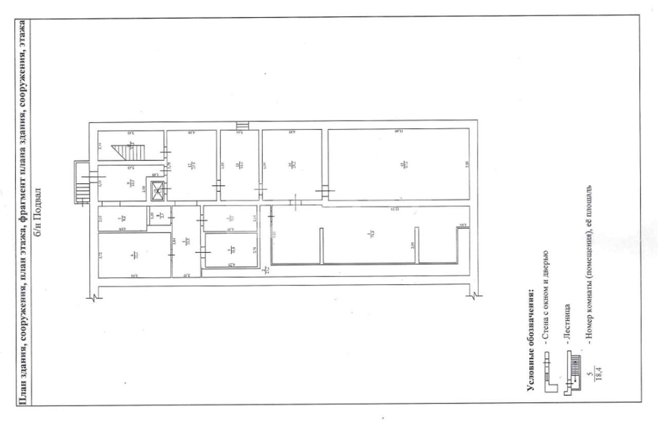
Cвободного назначения, 1496.1 м²

Производственный комплекс 1496 м² с мощностями 150 кВт. Готов к запуску! О предложении: В продаже отдельно стоящее трехэтажное здание промышленного назначения. Идеальный актив для действующего производства, склада с офисом. Объект не требует вложений в основные конструкции — заезжай и работай. Почему этот объект выгоден для вашего бизнеса: ✅ Мощности: Подведено 150 кВт. Хватит для серьезного оборудования без дорогостоящего наращивания. ✅ Планировка: 1496.1 м² полезной площади в том числе подземный этаж (идеально под хранение сырья или технические помещения). ✅ Состояние: Кровля полностью заменена (заменена в 2025 году). Центральные коммуникации (вода, канализация) уже подключены. ✅ Юридическая чистота: Вид разрешенного использования: «Производственное здание / Вспомогательное». Никаких проблем с согласованием деятельности. Кадастровый номер: 44:27:040224:1450. Локация и логистика: Адрес: ул. Борьбы, 75. Удобный подъезд для грузового транспорта, хорошая транспортная доступность для сотрудников и партнеров. Прямая продажа. 📞 Звоните прямо сейчас! Обсудим детали, договоримся о просмотре в удобное время.












































