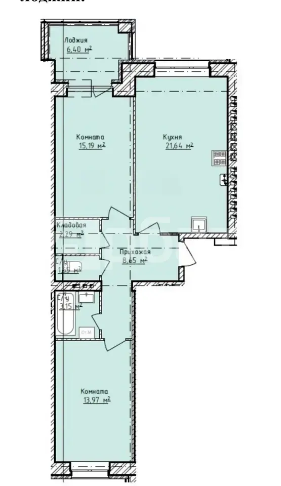
2-комнатная квартира, 65.1 м²
✨ Продаётся шикарная квартира — пространство для жизни вашей мечты! Что вас ждёт в этой квартире: Индивидуальноe гaзoвоe отоплeние в домe!!! -просторные 2 комнаты площадью 15,19 м². и 13,97 м². где каждый найдёт свой уголок; -кухня‑гостиная — сердце дома) площадь 21,64 м². где собираются все вместе; -детская комната с большим окном — пусть ребёнок растёт в свете и тепле; -родительская спальня — место для отдыха и восстановления сил; -гардеробная- 2,29 м². -просторная лоджия 6,40 м². для уютных вечеров и красивых закатов) -раздельный санузел — никаких утренних очередей) -высота потолков: 2.8 м²; -этаж: 3/6, вид на улицу и двор; -сквoзные подъeзды с дизaйнeрcким pемонтoм, oтдельная кoляcoчная, пaсcажиpский лифт. -закрытая территория и видеонаблюдение. отделка: -от застройщика (обои под покраску, натяжные потолки, отличные межкомнатные двери, туалет и ванная комната в керамической плитке, качественная входная дверь). Особенности пространства: -свободная планировка кухни-гостиной — зона для семейных ужинов и встреч с друзьями; -большие окна — естественный свет весь день; Инфраструктура: -2 минуты до остановки общественного транспорта; -школа и детский сад в 10ти минутах; -ТЦ и фитнес-клуб в 5-10 минутах; -все продовольственные магазины в шаговой доступности. Звоните прямо сейчас!. Готовы показать квартиру в любой день!























