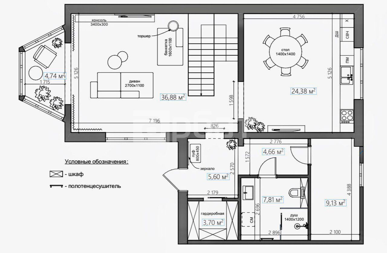
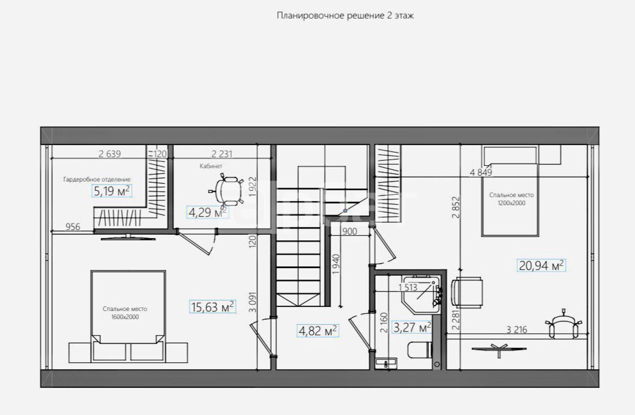
Дом, 149.5 м², 9 сот.

В продаже дом в ближайшем пригороде Костромы, 10 минут на машине от Коллажа д. Малое Андрейково Красносельского района. Деревня жилая - круглогодичный подъезд. Соседи рядом проживают круглый год. Площадь дома 149,5 кв.м. на участке 9 сот, сделано межевание. - Фундамент монолитная плита. - Дом из сруба 2 этажа - Отборные бревна во всю длину дома!!! - Электричество в доме. - Газ заведен в дом - Вода на участке - Недалеко речка - Детей в школу возит школьный автобус. Возможен обмен, Рассмотрим все варианты... Приятный бонус – В ПОДАРОК новым владельцам Дизайн Проект ВСЕГО ДОМА и тех.план коммуникаций... • Помощь в оформлении ипотеки • Работа с государственными сертификатами и программами (материнский капитал) • Юридическая чистота сделки: полная проверка документов, сопровождение на всех этапах Не упустите свой шанс приобрести свой дом в тихом спокойном районе. Звоните прямо сейчас!


























